Cedar Falls Schools Calendar
Cedar Falls Schools Calendar
View more property details sales history and Zestimate data on Zillow. Choose Select a Calendar to view a specific calendar. Please check back regularly for any amendments that may occur or consult the Cedar Falls Community School District website for their 2020-2021 approved calendar and 2021-2022 approved calendar You may also wish to visit the school district homepage. TigerPride Congrats to our State Champions.

Cedar Falls Community School District
On subsequent week days at the end of the school year.

Cedar Falls Schools Calendar. Cedar Falls police match money raised for 4 year-old battling cancer. Cedar Falls Community School District. May 22 at 945 PM.
Cedar Rapids schools to end school year on June 4. Caps off to these Cedar Falls High School Classof2021 grads. Cedar Falls Community School District Cedar Falls IA.
What information do I. On subsequent week days at the end of the school year. Cedar Falls had 17 athletes combine to score points in 13 events as the Tigers accumulated a championship total of 87 points.
4946 likes 340 talking about this. 6 rows School Holidays Starts Finishes. Prairie Crest 2020 Cedar Falls Community School District.

Cedar Falls Community School District

Cedar Falls Schools On Twitter Mark Your Calendars And Help Us Celebrate Cf Highschool Commencement The Ceremony Will Air Live On Cedar Falls Channel 15 On Sunday May 24 At 2 P M You

Cedar Falls Community School District
Cedar Falls Community School District

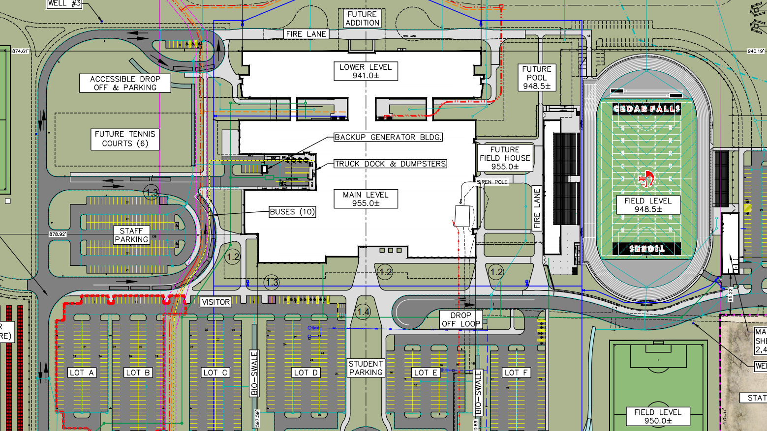
New Cedar Falls High School Site Plan Unveiled Local News Wcfcourier Com

New Cedar Falls High School Site Plan Unveiled Local News Wcfcourier Com

Cedar Falls Community School District

River Hills Central Rivers Aea
Cedar Falls Community School District

Collectibles Cities Towns Cedar Falls Ia Abc R Little Red School Cook Book Iowa Community Recipes
Http Dx1slceezt1vd Cloudfront Net Attachments 00450f4c3d2d3d79af368fe212448fdbfe16ef9d Store B41bd665b372460caa402750e8a2dc93c41f55fd46f8c51ecf01f97d5c87 4 22 19 Board Meeting Minutes Pdf
Post a Comment for "Cedar Falls Schools Calendar"